Studienauftrag Umbau "altes Schulhaus", Stadel
kommunales Schutzobjekt
Studienauftrag 1. Platz 2025
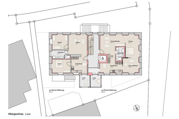
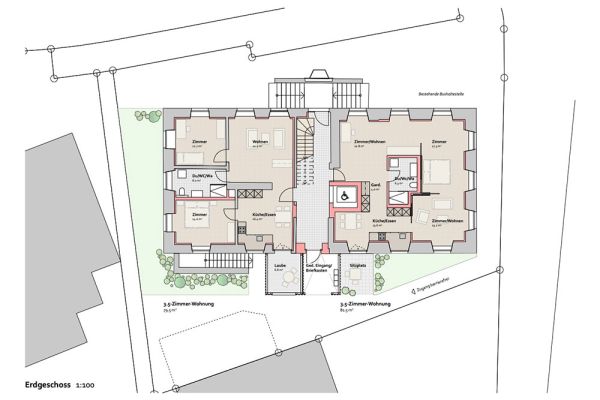
Der behutsame Umbau des historischen Gebäudes aus dem Jahr 1830 verlangt besondere Sorgfalt und Respekt im Umgang mit der bestehenden Bausubstanz. Ziel ist es, die architektonische Qualität und die historische Bedeutung des Bauwerks zu erhalten und gleichzeitig Wohnraum zu schaffen welcher heutigen Ansprüchen entspricht.
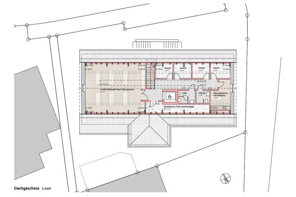
Im Erd- und Obergeschoss sind vier 3.5-Zimmer-Wohnungen geplant und das Dachgeschoss soll zu einem multifunktionalen Saal ausgebaut werden. Ein entlang des Firsts geführtes Oblichtband sorgt für eine gleichmässige Belichtung des Raumes, ohne die geschlossene Dachfläche zu durchbrechen – ein architektonisches Element, das Funktionalität und Substanzbewahrung in Einklang bringt.

